服务热线:150 0066 6432
一、Z43H带导流平板闸阀概述
沃茈阀门(上海)有限公司生产销售的Z43H带导流平板闸阀适用于class150~900/pn1.0~16.0mpa,工作温度-29~121℃的石油、天然气、水、油品等管路上,用于截断或接通管路中的介质。
二、Z43H带导流平板闸阀应用范围
平板闸阀适用于天然气,石油,化工,环保,城市管道,燃气管线等输送管线,放空系统和汽储存装置上,用作启闭设备。 z43h型带导流孔单闸板式平板闸阀适用于天然气开采和净化的长输管线。
三、Z43H带导流平板闸阀结构特点
1、阀座采用o形密封圈密封和施加预紧力的浮动阀座结构,使平板闸阀进出口双向密封;并且该结构的启闭力矩仅为普通阀门的1/2,能达到轻松开、关阀门
2、在全开时,通道平滑为直线,流阻系数极小,无压力损失,可通毛球清扫管线
3、采用带自密封能力的填料结构,无需经常调节,开、关极为轻便,且密封性可靠,填料函处设有辅助密封油脂注入结构,密封性能可靠,真正达到零泄漏;解决了通用阀门填料处容易外漏的弊病。
4、平板闸阀关闭时能自动卸掉内腔高压,保证使用安全
5、全封闭结构,防护性能好,可适应全天候要求
四、Z43H带导流平板闸阀标准规范
设计制造标准:jb/t 5298 结构长度标准:jb/t 5298 连接法兰标准:gb/t 9113 压力温度等级:gb/t 12224-2005 试验检验标准:gb/t 13927-2008、jb/t 5298
五、Z43H带导流平板闸阀 零件材料与工况
零件名称 | 零部件材料 | |||
jb/t7298 | api 6d | |||
阀门/阀盖 | wcb | wcb | a352-lcb | a351-cf8m |
闸板 | 2cr13+enp | 20crmov+stl | ansi 410+enp | ansi 316+enp |
阀杆 | 2cr13 | 2cr13 | a182-f6a | a182-f316s |
阀座 | 25+ptfe | 20crmov+stl | a105+ptfe | a182-f316+ptfe |
填料 | nbr/fpm | 柔性石墨 | 聚四氟乙烯 | |
垫片 | 18-8/柔性石墨 | |||
螺栓 | 35 | 35crmo | a193-b7m | a193-b8 |
适用温度 | -29~250℃ | -29~550℃ | -46~250℃ | -40~200℃ |
适用介质 | 水、油品 | 蒸汽、油品 | 丙烷、乙烯 | 硝酸类 |
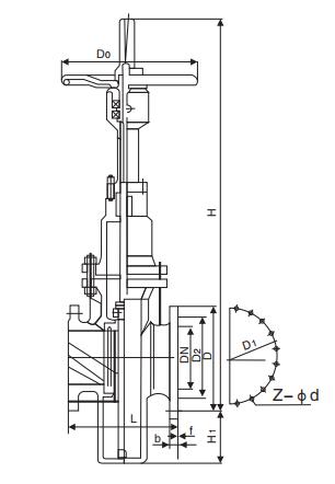
六、Z43H带导流平板闸阀主要尺寸及重量

公称通径 | 结构长度l | h | h1 | ||||
dn | nps | 手动 | 伞齿轮传动 | 气动 | 电动 | ||
25 | 11/4 | 127 | \ | \ | \ | \ | \ |
32 | 11/4 | 165 | 385 | \ | \ | \ | 63 |
40 | 11/2 | 165 | 385 | \ | \ | \ | 63 |
50 | 2 | 178 | 415 | \ | \ | \ | 74 |
65 | 21/2 | 190 | 462 | \ | \ | \ | 83 |
80 | 3 | 203 | 563 | \ | \ | \ | 95 |
100 | 4 | 229 | 648 | \ | \ | \ | 109 |
125 | 5 | 254 | 715 | \ | \ | \ | 125 |
150 | 6 | 267 | 836 | \ | 636 | 979 | 144 |
200 | 8 | 292 | 1034 | \ | 796 | 1096 | 176 |
250 | 10 | 330 | 1230 | \ | 960 | 1297 | 204 |
300 | 12 | 356 | 1405 | 1460 | 1118 | 1520 | 240 |
350 | 14 | 381 | 1607 | 1642 | 1305 | 1768 | 263 |
400 | 16 | 406 | 1775 | 1865 | 1425 | 1935 | 293 |
500 | 20 | 457 | 2176 | 2251 | 1724 | 2300 | 350 |
600 | 24 | 508 | 2564 | 2642 | 1995 | 2770 | 403 |
700 | 28 | 610 | 2950 | 3128 | 2293 | 3570 | 450 |
800 | 32 | 660 | 3335 | 3515 | 2675 | 3985 | 507 |
900 | 36 | 711 | 3720 | 3900 | 3060 | 4370 | 555 |
1000 | 40 | 811 | 4105 | 4290 | 3445 | 4755 | 610 |