服务热线:150 0066 6432
一、国标无导流孔平板闸阀产品特点
沃茈阀门(上海)有限公司生产销售的国标无导流孔平板闸阀具有密封性能可靠、启闭力矩小、具有抗硫耐磨、使用寿命长、可通毛球清扫管线等特点;适用水、石油、天然气、蒸汽等非腐蚀性和腐蚀性介质的管路系统中作启闭装置,特别适用于石化、油、气、长输管线等领域。
公称压力 | 产品型号 | |
1.0~16.0mpa | 无导流孔 | z6s43wf、z6s43wd、z6s43wy、z6s43wbf、z6s43wby |
有导流孔 | z6s43nf、z6s43df、z6s43yf、z6s43f、z6s43d、z6s43y |
二、国标无导流孔平板闸阀性能规范
压力等级 | 常温下压力试验(mpa) | 适用温度(℃) | 适用介质 | |||||||
壳体 | 左密封 | 右密封 | 低压密封 | "g"型 | "d"型 | 普通型 | "kz"型 | "z"型 | ||
公称压力 | 1.0 | 1.5 | 1.1 | 1.1 | 0.6 | -29~250 | -45~121 | -29~121 | 含h2s和co2 | 石油、天然气、水等 |
1.6 | 2.4 | 1.76 | 1.76 | 0.6 | ||||||
2.5 | 3.75 | 2.75 | 2.75 | 0.6 | ||||||
4.0 | 6.0 | 4.4 | 4.4 | 0.6 | ||||||
6.4 | 9.6 | 7.04 | 7.04 | 0.6 | ||||||
10.0 | 15.0 | 11.0 | 11.0 | 0.6 | ||||||
16.0 | 24.0 | 17.6 | 17.6 | 0.6 | ||||||
磅级 lb | 150 | 2.93 | 2.07 | 2.07 | 0.6 | |||||
300 | 5.52 | 5.52 | 5.52 | 0.6 | ||||||
400 | 10.0 | 7.31 | 7.31 | 0.6 | ||||||
600 | 15.0 | 11.03 | 11.03 | 0.6 | ||||||
900 | 22.4 | 16.54 | 16.54 | 0.6 | ||||||
三、国标无导流孔平板闸阀主要零件材料
零件名称 | 阀体、阀盖 | 闸板 | 阀杆 | 阀座 | 阀杆螺母 | 密封圈 | 填料 | 密封指 |
"z"型 | wcb | 合金钢(特殊处理) | 不锈钢 | 合金钢(特殊处理) | 铝青铜 | 填充四氟 | 填充四氟、膨胀石墨 | 耐油密封脂 |
"kz"型 | 抗硫不锈钢 | 抗硫密封脂 |
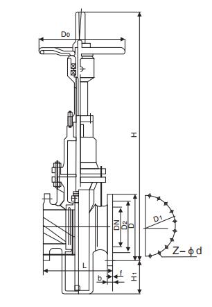
四、国标无导流孔平板闸阀主要外形尺寸

dn | pn16 | pn40 | pn40 | pn100 | pn160 | 900lb |
50 | 178 | 216 | 250 | 292 | 280 | 330 |
65 | 190 | 241 | 280 | 330 | 315 | 356 |
80 | 203 | 283 | 310 | 356 | 380 | 381 |
100 | 229 | 305 | 350 | 432 | 425 | 457 |
125 | 254 | 381 | 400 | 508 | 480 | 559 |
150 | 267 | 403 | 450 | 559 | 530 | 610 |
200 | 292 | 419 | 550 | 660 | 620 | 737 |
250 | 330 | 457 | 650 | 787 | 730 | 838 |
300 | 356 | 502 | 750 | 838 | 850 | 965 |
350 | 381 | 762 | 850 | 889 | 980 | 1029 |
400 | 406 | 838 | 950 | 991 | 1100 | 1130 |
450 | 432 | 914 | 1050 | 1092 | 1200 | 1219 |
500 | 457 | 991 | 1150 | 1194 | 1250 | 1321 |
600 | 508 | 1143 | 1350 | 1397 | 1450 | 1549 |
700 | 610 | 1346 | 1450 |