lwj41f chlorine globe valve structural features: 1, hydraulically formed bellows form the first seal to ensure zero leakage stem seal. 2, packing box multi-grade ptfe packing in the bellows formed on the second seal, an increase of the reliability of the seal. 3, the flange with groove seal structure, even in the pipeline pressure fluctuations in the case, to ensure reliable sealing flange. 4, sealing pair matching structure type cone, flat, automatic seal compensation to achieve double insurance effect, stable sealing performance, no adhesive wear and long service life.
lwj41f chlorine globe valve main parts and materials:
| serial number | part name | material |
| 1 | body | nickel-containing high-silicon corrosion-resistant steel |
| 2 | cap | nickel-containing high-silicon corrosion-resistant steel |
| 3 | valve stem | chrome stainless steel |
| 4 | valve sealing surface | plasma spray welding, corrosion resistant alloy surfacing |
| 5 | seat sealing surface | compression plastic sintered ptfe |
| 6 | filler | teflon |
| 7 | gasket | teflon |
| 8 | corrugated pipe | 316l, c-276 |
lwj41f chlorine globe valve features:
1, according to the specific characteristics of the media, chlorine bellows valve for the valve body material selection of corrosion-resistant alloy, chlorine resistance, liquid chlorine corrosion, low temperature can be -40 ℃, to ensure maximum operating conditions conditions.
2, hydraulically formed bellows form the first seal to ensure that the stem seals zero leakage.
3, stuffing box multi-grade ptfe packing in the bellows formed on the second, increasing the reliability of the seal.
4, the flange with tongue and groove seal structure, even in the case of pipeline pressure fluctuations, to ensure reliable flange seal.
5, non-rotating stem to prevent the bellows to reverse, to ensure that the valve longer cycle life.
6, the sealing pair form the structure of the cone, flat, sealed automatic compensation, to double the effect of insurance, sealing performance and stability, no adhesive wear and long service life.
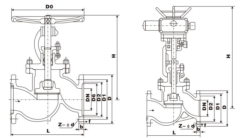
lwj41f chlorine globe valve main dimensions:

| pressure level | pn16 | ||||||||||||||
| caliber | 15 | 20 | 25 | 32 | 40 | 50 | 65 | 80 | 100 | 125 | 150 | 200 | 250 | 300 | 350 |
| l | 130 | 150 | 160 | 180 | 200 | 230 | 290 | 310 | 350 | 400 | 480 | 600 | 730 | 850 | 980 |
| h | 195 | 200 | 220 | 225 | 235 | 250 | 260 | 265 | 370 | 400 | 515 | 550 | 600 | 630 | 680 |
| do | 130 | 130 | 130 | 130 | 150 | 150 | 180 | 180 | 200 | 200 | 400 | 450 | 450 | 500 | 500 |
| weight (kg) | 4 | 4.5 | 5 | 7 | 9 | 12.5 | 18 | 23 | 41 | 54 | 90 | 160 | 260 | 410 | 610 |