v231 self-operated pressure (differential pressure) regulating valveproduct description:
v231 self-operated pressure (differential pressure) regulating valve produced and sold by woci valve group, the valve body, seat, valve components and other components, is a kind of without external energy and only rely on the pressure of the media to be adjusted automatically adjust the pressure of energy savings type products, can be used for non-corrosive (maximum temperature of 350 ℃) liquid, gas and steam and other media pressure control device. widely used in petroleum, chemical, metallurgy, light industry and other industrial sectors and urban heating, heating systems.
◆ model, specifications
category | pressure control valve | differential pressure control valve | ||||||
valve pressure regulator | valve pressure regulator | differential pressure rise valve closed | pressure differential valve opens | |||||
hard seal | soft seal | hard seal | soft seal | hard seal | soft seal | hard seal | soft seal | |
model | v230 d01 | v230d01 | v230d02 | v231d02 | v230d03 | v231d03 | v230d04 | v231d04 |
specification | dn15-250 | |||||||
v231 self-operated pressure (differential pressure) regulating valve technical parameters:
nominal diameter mm | 15 | 20 | 25 | 32 | 40 | 50 | 65 | 80 | 100 | 125 | 150 | 200 | 250 | |
rated flow coefficient kvs | 3.2 | 5 | 8 | 12.5 | 20 | 32 | 50 | 80 | 125 | 160 | 320 | 450 | 630 | |
nominal pressure mpa | 1.6, 4.0 | |||||||||||||
z value | 0.6 | 0.6 | 0.6 | 0.55 | 0.55 | 0.5 | 0.5 | 0.45 | 0.4 | 0.35 | 0.3 | 0.2 | 0.2 | |
the highest working temperature ℃ | v230 v231 | liquid ≤ 140, gas ≤ 80 | ||||||||||||
hard seal v230 | with isolation tank ≤ 200 | with isolation tank and extension pieces ≤ 300 * | ||||||||||||
with isolation tank and heat sink ≤ 200 | ||||||||||||||
pressure balance element | corrugated pipe | rolling the diaphragm | ||||||||||||
flange standard | dia (also available on request flange standard) | |||||||||||||
body material | pn16: cast iron (working temperature ≤ 200 ℃); pn4.0: cast steel, cast stainless steel (working temperature ≤ 350 ℃) | |||||||||||||
spool material | stainless steel; soft seal stainless steel inlaid rubber ring | |||||||||||||
the maximum working pressure mpa | nominal pressure (note △ pmax and the relationship between working pressure and working temperature) | |||||||||||||
note: 1, the liquid> 140 ℃, gas> 80 ℃ when the valve flip; 2, z value: noise measurement coefficient, the value used to measure the size of the noise, the specific calculation see the self-regulating valve selection guide.
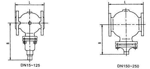
◆ dimension

nominal diameter mm | 20 | 25 | 32 | 40 | 50 | 65 | 80 | 100 | 125 | 150 | 200 | 250 |
l mm | 150 | 160 | 180 | 200 | 230 | 290 | 310 | 350 | 400 | 480 | 600 | 730 |
b mm | 212 | 238 | 238 | 240 | 240 | 275 | 275 | 380 | 380 | 295 | 325 | 372 |
approximate weight kg | 6.7 | 9.7 | 13 | 14 | 17 | 29 | 33 | 60 | 70 | 80 | 140 | 220 |
◆ d02 (d04) actuator size and weight
effective area cm 2 | 32 | 80 | 250 | 630 |
d mm | 172 | 172 | 263 | 380 |
h mm | 435 | 430 | 470 | 520 |
approximate weight kg | 7.5 | 7.5 | 13 | 28 |

effective area cm 2 | 32 | 80 | 250 | 630 |
d mm | 172 | 172 | 263 | 380 |
h mm | 440 | 435 | 440 | 520 |
approximate weight kg | 7.5 | 7.5 | 13 | 28 |
note: direct acting self-operated valve of the total height and weight for the control valve and actuator height and weight.