z943f electric flat gate valve - product description
z943f electric flat gate valve produced and sold by woci valve group sealing performance, opening and closing torque is small, with anti-sulfur wear, long life, can be used to clean the hair ball pipe and other characteristics; for water, oil, natural gas, steam and other non-corrosive and corrosive media pipeline system for hoist device, especially for petrochemical, oil, gas, long-distance pipeline and so on.
z943f electric flat gate valve - performance specifications
nominal pressure | product number | |
1.0 ~ 16.0mpa 150 ~ 900lb | no diversion hole | z9b43wf, z9b43wd, z9b43wy, z9b43wbf, z9b43wby |
diversion hole | z9b43nf, z9b43df, z9b43yf, z9b43f, z9b43d, z9b43y |
pressure level | pressure test at room temperature (mpa) | applicable temperature (℃) | suitable media | |||||||
case | left seal | right seal | low pressure dense | "g" type | "d" type | normal type | "kz" type | "z" type | ||
nominal pressure (mpa) | 1 | 1.5 | 1.1 | 1.1 | 0.6 | -29 ~ 250 | -45 ~ 121 | -29 ~ 121 | medium containing | oil, gas, water |
1.6 | 2.4 | 1.76 | 1.76 | 0.6 | ||||||
2.5 | 3.75 | 2.75 | 2.75 | 0.6 | ||||||
4 | 6 | 4.4 | 4.4 | 0.6 | ||||||
6.4 | 9.6 | 7.04 | 7.04 | 0.6 | ||||||
10 | 15 | 11 | 11 | 0.6 | ||||||
16 | 24 | 17.6 | 17.6 | 0.6 | ||||||
lb | 150 | 2.93 | 2.07 | 2.07 | 0.6 | |||||
300 | 5.52 | 5.52 | 5.52 | 0.6 | ||||||
400 | 10 | 7.31 | 7.31 | 0.6 | ||||||
600 | 15 | 11.03 | 11.03 | 0.6 | ||||||
900 | 22.4 | 16.54 | 16.54 | 0.6 | ||||||
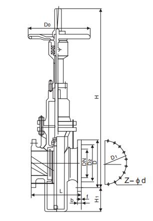
z943f electric flat gate valve - dimensions

| nominal pressure (mpa) | nominal diameter (mpa) | size (mm) | ||||||||||
| l | d | d1 | d2 | b | f | zd | h | h1 | e | w | ||
| 1.6 | 40 | 165 | 150 | 110 | 84 | 18 | 3 | 4-18 | 365 | 415 | 90 | 305 |
| 50 | 178 | 165 | 125 | 99 | 20 | 3 | 4-18 | 387 | 455 | 105 | 305 | |
| 65 | 190 | 185 | 145 | 118 | 20 | 30 | 8-18 | 466 | 545 | 133 | 305 | |
| 80 | 203 | 200 | 160 | 132 | 20 | 3 | 8-18 | 520 | 645 | 156 | 305 | |
| 100 | 229 | 220 | 180 | 156 | 22 | 3 | 8-18 | 655 | 740 | 182 | 305 | |
| 150 | 267 | 285 | 240 | 211 | 24 | 3 | 8-22 | 823 | 980 | 269 | 305 | |
| 200 | 292 | 340 | 295 | 266 | 24 | 3 | 12-22 | 1010 | 1210 | 350 | 305 | |
| 250 | 330 | 405 | 355 | 319 | 26 | 3 | 12-26 | 1220 | 1470 | 412 | 305 | |
| 300 | 356 | 460 | 410 | 370 | 28 | 4 | 12-26 | 1405 | 1805 | 505 | 305 | |
| 350 | 381 | 520 | 470 | 429 | 30 | 4 | 16-26 | 1580 | 1950 | 560 | 305 | |
| 400 | 406 | 580 | 525 | 480 | 32 | 4 | 16-30 | 1777 | 2197 | 665 | 305 | |
| 500 | 457 | 715 | 650 | 609 | 36 | 4 | 20-33 | 2132 | 2652 | 817 | 458 | |
| 600 | 508 | 840 | 770 | 720 | 38 | 5 | 20-36 | 2545 | 3201 | 920 | 458 | |
| 2.5 | 40 | 165 | 150 | 110 | 84 | 18 | 3 | 4-18 | 365 | 415 | 90 | 305 |
| 50 | 178 | 165 | 125 | 99 | 20 | 3 | 4-18 | 387 | 455 | 105 | 305 | |
| 65 | 191 | 185 | 145 | 118 | 20 | 3 | 8-18 | 466 | 545 | 133 | 305 | |
| 80 | 203 | 200 | 160 | 132 | 24 | 3 | 8-18 | 520 | 645 | 156 | 305 | |
| 100 | 229 | 235 | 190 | 156 | 24 | 3 | 8-22 | 655 | 740 | 182 | 305 | |
| 150 | 267 | 300 | 250 | 211 | 28 | 3 | 8-26 | 823 | 980 | 269 | 305 | |
| 200 | 292 | 360 | 310 | 274 | 30 | 3 | 12-26 | 1010 | 1210 | 350 | 305 | |
| 250 | 330 | 425 | 370 | 330 | 32 | 3 | 12-30 | 1220 | 1470 | 412 | 305 | |
| 300 | 356 | 485 | 430 | 389 | 34 | 4 | 16-30 | 1405 | 1805 | 505 | 305 | |
| 350 | 381 | 555 | 490 | 448 | 38 | 4 | 16-33 | 1580 | 1950 | 560 | 305 | |
| 400 | 406 | 620 | 550 | 503 | 40 | 4 | 16-36 | 1777 | 2197 | 665 | 305 | |
| 500 | 457 | 730 | 660 | 609 | 44 | 4 | 20-36 | 2132 | 2652 | 817 | 458 | |
| 600 | 508 | 845 | 770 | 720 | 46 | 4 | 20-39 | 2545 | 3201 | 920 | 458 | |