closed gate valve product structure features:
1, the valve adopts fully enclosed structure, the operation medium will not be leaked to the outside, operating safety and environmental pollution. 2, the valve body frame structure, good rigidity, can withstand high medium pressure. 3, the seal of the vice parts with stainless steel and rubber seal, seal for the double convex seal. 4, seals installed on the valve plate, easy to replace. 5, between the telescopic body and the fixed sleeve using multi-layer corrugated pipe connection, suitable for long life, more reliable sealing, corrugated pipe installed filler-type wear sleeve, dust does not enter the bellows. 6, clamping mechanism using closed-loop multi-point clamping, synchronization is good. 7, a special control rod and top wheel body, to ensure that the valve plate run frictionless. 8, with nitrogen purge holes, in order to purge the seat and transmission parts of the ash, open flexible. 9, the bottom of the drain connector, the valve box effusion. 10, clamping, loosening and valve plate travel all-electric drive. easy to operate, stable performance, electric with manual mechanism, hand, electric can be realized without worry moving switch.
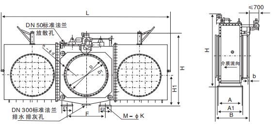
closed gate valve product main dimensions:

dn | l | d | d1 | b | nd | l1 | h | h1 | b | b1 | a | c | c1 | c2 | e1 | e2 | n1-d1 |
800 | 3900 | 975 | 920 | 26 | 24-30 | 1545 | 1970 | 750 | 1070 | 650 | 1150 | 950 | 350 | 300 | 250 | 220 | 12-32 |
900 | 4400 | 1075 | 1020 | 28 | 24-30 | 2200 | 2028 | 890 | 1100 | 700 | 1150 | 950 | 350 | 300 | 250 | 220 | 12-32 |
1000 | 4735 | 1175 | 1120 | 30 | 28-30 | 2368 | 2230 | 960 | 1100 | 700 | 1250 | 950 | 350 | 300 | 250 | 220 | 12-32 |
1200 | 6214 | 1375 | 1320 | 30 | 32-30 | 3105 | 2570 | 1060 | 1100 | 700 | 1450 | 950 | 300 | 300 | 250 | 220 | 12-32 |
1400 | 6915 | 1575 | 1520 | 30 | 36-30 | 3400 | 2850 | 1180 | 1200 | 800 | 1450 | 950 | 350 | 300 | 250 | 220 | 12-32 |
1600 | 7630 | 1790 | 1730 | 30 | 40-30 | 3600 | 3150 | 1350 | 1200 | 800 | 1150 | 920 | 250 | 720 | 475 | 630 | 16-26 |
1800 | 8068 | 1990 | 1930 | 30 | 44-30 | 3700 | 3565 | 1580 | 1400 | 950 | 1150 | 920 | 250 | 720 | 475 | 630 | 16-26 |
2000 | 8718 | 2190 | 2130 | 30 | 48-30 | 3855 | 3825 | 1720 | 1500 | 950 | 1924 | 1044 | 522 | 720 | 280 | 512 | 16-26 |
2200 | 9320 | 2405 | 2430 | 32 | 52-33 | 4285 | 4150 | 1820 | 1550 | 950 | 2030 | 1044 | 522 | 810 | 280 | 606 | 16-26 |
2400 | 10000 | 2605 | 2540 | 32 | 56-33 | 4615 | 4660 | 1960 | 1550 | 1016 | 2130 | 1130 | 565 | 820 | 300 | 710 | 16-26 |
2600 | 10700 | 2805 | 2740 | 34 | 60-33 | 5100 | 5150 | 2050 | 1550 | 1016 | 2130 | 1130 | 565 | 820 | 300 | 710 | 16-26 |