q347f stainless steel fixed ball valve produced and sold by woci valve group is suitable for the working temperature of -28 ~ 300℃ of petroleum, chemical industry, thermal power station and other working conditions of the pipeline, cut off or connect the medium.applicable medium: water, steam, oil, nitric acid, acetic acid, urea and other corrosive and strong oxidizing medium.operation mode: manual, pneumatic, electric, hydraulic and gas-liquid linkage, etc.
q347f stainless steel fixed ball valve product structure features:
1, long life, use self-lubricating sealing ring ptfe material. sphere and seal ring micro-friction, effectively improve the service life.
2, small size, light weight, easy to install and maintain.
3, fixed ball valve structure can be installed in any direction and any part of the pipeline.
4, v-type stacked axial packing, anti-corrosion a-class seal.
q347f stainless steel fixed ball valve pressure test:
| nominal pressure | 1.6 | 2.5 | 4.0 |
| strength test | 2.4 | 3.8 | 6.0 |
| water seal test | 1.8 | 2.8 | 4.4 |
| gas seal test | 0.4-0.7 | ||
q347f stainless steel fixed ball valve main parts materials and performance:
| body | wcb | zg1cr18ni9ti | cf8 | cf3 | zg1cr18ni12mo2ti | cf8m | cf3m |
| ball valve stem | 2cr13 | 1cr18ni9ti | 304 | 304l | 1cr18ni12mo2ti | 316 | 316l |
| seat | polytetrafluoroethylene ptfe singapore fiber reinforced polytetrafluoroethylene ptfe + glass positioning poly stupid ppl | ||||||
| gasket | ptfe ptfe stainless steel / flexible graphite / tooth washer | ||||||
| stem seat | ptfe ptfe stainless steel / flexible graphite | ||||||
| filler | ptfe ptfe reinforced flexible graphite | ||||||
| packing gland | wcb | 1cr18ni9ti | 304 | 304l | 1cr18ni12mo2ti | 316 | 316l |
| temperature | -29 ~ 150 (polytetrafluoroethylene ptfe) -29 ~ 200 (plus glass fiber reinforced ptfe ptfe + glass) -29 ~ 300 (para poly-stupid ppl) | ||||||
| medium | steam oil products | nitric acids | strong oxidizing medium | acetic acid | urea | ||
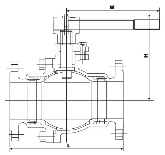
q347f stainless steel fixed ball valve specifications the main dimensions:

| 1.6mpa | dn | l | d | d1 | d2 | b | n-φd | h0 | h1 | h2 |
convex flange q347f 16c 16p 16r | 32 | 140 | 135 | 100 | 78 | 16 | 4-18 | 30 | 85 | 160 |
| 40 | 165 | 145 | 110 | 85 | 16 | 4-18 | 32 | 95 | 230 | |
| 50 | 178 | 160 | 125 | 100 | 16 | 4-18 | 43 | 107 | 230 | |
| 65 | 190 | 180 | 145 | 120 | 18 | 4-18 | 70 | 142 | 400 | |
| 80 | 203 | 195 | 160 | 135 | 20 | 8-18 | 110 | 152 | 400 | |
| 100 | 305 | 215 | 180 | 155 | 20 | 8-18 | 150 | 178 | 500 | |
| 125 | 356 | 245 | 210 | 185 | 22 | 8-18 | 200 | 252 | 500 | |
| 150 | 394 | 280 | 240 | 210 | 24 | 8-23 | 230 | 278 | 600 | |
| 200 | 457 | 335 | 295 | 265 | 26 | 12-23 | 260 | 395 | 600 | |
| 250 | 533 | 405 | 355 | 320 | 30 | 12-25 | 283 | 480 | 800 | |
| 300 | 610 | 460 | 410 | 375 | 30 | 12-25 | 380 | 585 | 800 | |
| 350 | 686 | 520 | 470 | 435 | 34 | 16-25 | 425 | 625 | 800 | |
| 400 | 762 | 580 | 525 | 485 | 36 | 16-30 | 492 | 720 | 800 | |
| 500 | 914 | 705 | 650 | 608 | 44 | 20-34 | 555 | 840 | 830 | |
| 600 | 1067 | 840 | 770 | 718 | 48 | 20-41 | 675 | 1050 | 830 | |
| 700 | 1245 | 910 | 940 | 788 | 50 | 24-41 | 850 | 1150 | 830 |
| 2.5mpa | dn | l | d | d1 | d2 | b | n-φd | h0 | h1 | h2 |
convex flange q347f 25 25p 25r | 32 | 180 | 135 | 100 | 78 | 18 | 4-18 | 30 | 85 | 160 |
| 40 | 190 | 145 | 110 | 85 | 18 | 4-18 | 32 | 95 | 230 | |
| 50 | 216 | 160 | 125 | 100 | 20 | 4-18 | 43 | 107 | 230 | |
| 65 | 241 | 180 | 145 | 120 | 22 | 8-18 | 70 | 142 | 400 | |
| 80 | 283 | 195 | 160 | 135 | 22 | 8-18 | 110 | 152 | 400 | |
| 100 | 305 | 230 | 190 | 160 | 24 | 8-23 | 150 | 178 | 500 | |
| 125 | 381 | 270 | 220 | 188 | 28 | 8-25 | 200 | 252 | 500 | |
| 150 | 403 | 300 | 250 | 218 | 30 | 8-25 | 230 | 278 | 600 | |
| 200 | 502 | 360 | 310 | 278 | 34 | 12-25 | 260 | 395 | 600 | |
| 250 | 568 | 425 | 370 | 332 | 36 | 12-30 | 283 | 480 | 800 | |
| 300 | 648 | 485 | 430 | 390 | 40 | 16-30 | 380 | 585 | 800 | |
| 350 | 762 | 550 | 490 | 448 | 44 | 16-34 | 425 | 625 | 800 | |
| 400 | 838 | 610 | 550 | 505 | 48 | 16-34 | 492 | 720 | 800 | |
| 500 | 991 | 730 | 660 | 610 | 52 | 20-41 | 555 | 840 | 830 | |
| 600 | 1143 | 840 | 770 | 718 | 56 | 20-41 | 675 | 1050 | 830 | |
| 700 | 1346 | 955 | 875 | 815 | 60 | 24-48 | 850 | 1150 | 830 |
| 4.0mpa | dn | l | d | d1 | d2 | d6 | b | n-φd | h0 | h1 | h2 |
bump flange q347f 40 40p 40r | 32 | 180 | 135 | 100 | 78 | 66 | 18 | 4-18 | 30 | 85 | 160 |
| 40 | 190 | 145 | 110 | 85 | 76 | 18 | 4-18 | 32 | 95 | 230 | |
| 50 | 216 | 160 | 125 | 100 | 88 | 20 | 4-18 | 43 | 107 | 230 | |
| 65 | 241 | 180 | 145 | 120 | 110 | 22 | 8-18 | 70 | 142 | 400 | |
| 80 | 283 | 195 | 160 | 135 | 121 | 22 | 8-18 | 110 | 152 | 400 | |
| 100 | 305 | 230 | 190 | 160 | 150 | 24 | 8-23 | 150 | 178 | 500 | |
| 125 | 381 | 270 | 220 | 188 | 176 | 28 | 8-25 | 200 | 252 | 500 | |
| 150 | 403 | 300 | 250 | 218 | 204 | 30 | 8-25 | 230 | 278 | 600 | |
| 200 | 502 | 375 | 320 | 282 | 260 | 38 | 12-30 | 260 | 395 | 600 | |
| 250 | 568 | 445 | 385 | 345 | 313 | 42 | 12-34 | 283 | 480 | 800 | |
| 300 | 648 | 510 | 450 | 408 | 364 | 46 | 16-34 | 380 | 585 | 800 | |
| 350 | 762 | 570 | 510 | 465 | 422 | 52 | 16-34 | 425 | 625 | 800 | |
| 400 | 838 | 655 | 585 | 535 | 474 | 58 | 16-41 | 492 | 720 | 800 | |
| 500 | 991 | 755 | 670 | 612 | 576 | 62 | 20-48 | 555 | 840 | 830 | |
| 600 | 1143 | 890 | 795 | 730 | 678 | 62 | 20-54 | 675 | 1050 | 830 | |
| 700 | 1346 | 995 | 900 | 835 | 768 | 68 | 24-54 | 850 | 1150 | 830 |