服务热线:150 0066 6432
一、PZ573X伞齿轮浆液阀/伞齿轮刀闸阀概述
沃茈阀门(上海)有限公司生产销售的PZ573X伞齿轮浆液阀/伞齿轮刀闸阀具有结构简单紧凑、设计合理、轻型节材,密封可靠、操作轻便灵活、体积小、通道流畅、流阻小、重量轻、易安装、易拆卸等优点,可在工作压力1.0mpa-2.5mpa,使用温度-29-650℃情况下正常工作。
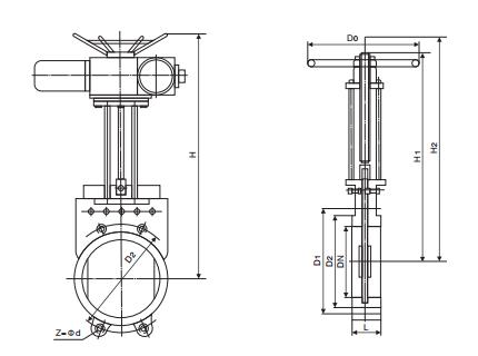
二、PZ573X伞齿轮浆液阀/伞齿轮刀闸阀主要外形及连接尺寸

mpa | dn | l | d | d1 | h | n-m |
1.0 | 50 | 40 | 125 | 95 | 425 | 4-m16 |
65 | 40 | 145 | 110 | 475 | 4-m16 | |
80 | 50 | 160 | 127 | 505 | 8-m16 | |
100 | 50 | 180 | 149 | 580 | 8-m16 | |
125 | 50 | 210 | 174 | 655 | 8-m16 | |
150 | 60 | 240 | 199 | 745 | 8-m20 | |
200 | 60 | 295 | 250 | 890 | 8-m20 | |
250 | 70 | 350 | 310 | 1125 | 12-m20 | |
300 | 70 | 400 | 360 | 1325 | 12-m20 | |
350 | 96 | 460 | 416 | 1480 | 16-m20 | |
400 | 100 | 515 | 466 | 1645 | 16-m24 |