服务热线:150 0066 6432
一、V231型自力式压力(差压)调节阀产品概述:
沃茈阀门(上海)有限公司生产销售的V231型自力式压力(差压)调节阀,由阀体、阀座、阀芯部件等零部件组成,是一种无需外来能源而只依靠被调介质自身的压力变化进行自动调节压力 的节能型产品,可用于非腐蚀性(适用温度≤350℃)的液体、气体和蒸汽等介质的压力控制装置。广泛适用于石油、化工、冶金、轻工等工业部门及城市供热、供暖系统。
◆型号、规格
类别 | 压力控制调节阀 | 差压控制调节阀 | ||||||
阀后压力调节阀 | 阀前压力调节阀 | 差压上升阀关闭 | 差压上升阀开启 | |||||
硬密封 | 软密封 | 硬密封 | 软密封 | 硬密封 | 软密封 | 硬密封 | 软密封 | |
型号 | v230 d01 | v230d01 | v230d02 | v231d02 | v230d03 | v231d03 | v230d04 | v231d04 |
规格 | dn15-250 | |||||||
二、V231型自力式压力(差压)调节阀技术参数:
公称通径 mm | 15 | 20 | 25 | 32 | 40 | 50 | 65 | 80 | 100 | 125 | 150 | 200 | 250 | |
额定流量系数 kvs | 3.2 | 5 | 8 | 12.5 | 20 | 32 | 50 | 80 | 125 | 160 | 320 | 450 | 630 | |
公称压力 mpa | 1.6、 4.0 | |||||||||||||
z 值 | 0.6 | 0.6 | 0.6 | 0.55 | 0.55 | 0.5 | 0.5 | 0.45 | 0.4 | 0.35 | 0.3 | 0.2 | 0.2 | |
工作温度℃ | v230 v231 | 液体≤ 140 、气体≤ 80 | ||||||||||||
硬密封 v230 | 配隔离罐≤ 200 | 配隔离罐和加长件≤ 300* | ||||||||||||
配隔离罐和散热片≤ 200 | ||||||||||||||
压力平衡元件 | 波纹管 | 滚动膜片 | ||||||||||||
法 兰 标 准 | dia (亦可按用户要求提供法兰标准) | |||||||||||||
阀 体 材 质 | pn16 :铸铁(工作温度≤ 200 ℃); pn4.0 :铸钢、铸不锈钢(工作温度≤ 350 ℃) | |||||||||||||
阀 芯 材 质 | 不锈钢;软密封为不锈钢镶嵌橡胶圈 | |||||||||||||
最高工作压力 mpa | 公称压力(注意△ pmax 及工作压力与工作温度的关系) | |||||||||||||
注:
1、液体>140℃、气体>80 ℃时阀倒装;
2、z值:噪音衡量系数,该值用来衡量噪音大小,具体计算详见自力式调节阀选择指南。
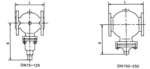
◆外形尺寸

◆V230/V231控制阀尺寸及重量
公称通径 mm | 20 | 25 | 32 | 40 | 50 | 65 | 80 | 100 | 125 | 150 | 200 | 250 |
l mm | 150 | 160 | 180 | 200 | 230 | 290 | 310 | 350 | 400 | 480 | 600 | 730 |
b mm | 212 | 238 | 238 | 240 | 240 | 275 | 275 | 380 | 380 | 295 | 325 | 372 |
大约重量 kg | 6.7 | 9.7 | 13 | 14 | 17 | 29 | 33 | 60 | 70 | 80 | 140 | 220 |
◆d02(d04)执行器尺寸及重量
有效面积 cm 2 | 32 | 80 | 250 | 630 |
d mm | 172 | 172 | 263 | 380 |
h mm | 435 | 430 | 470 | 520 |
大约重量 kg | 7.5 | 7.5 | 13 | 28 |

◆d01(d03)执行器尺寸及重量
有效面积 cm 2 | 32 | 80 | 250 | 630 |
d mm | 172 | 172 | 263 | 380 |
h mm | 440 | 435 | 440 | 520 |
大约重量 kg | 7.5 | 7.5 | 13 | 28 |
注:直接作用式自力式阀的总高及总重为控制阀与执行器高度及 重量之和。