服务热线:150 0066 6432
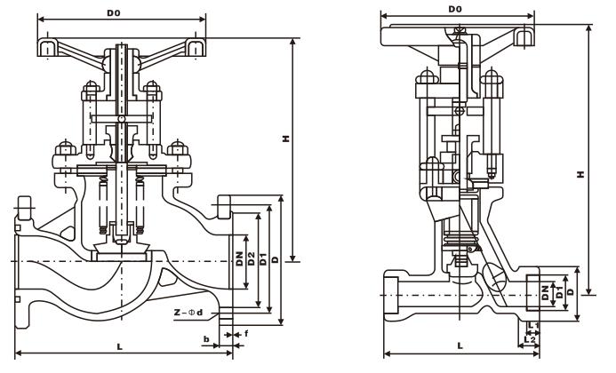
一、沃茈阀门(上海)有限公司生产销售的WJ41H国标(A105)波纹管截止阀产品主要结构特点:
1、产品结构合理、密封可靠、性能优良、造型美观;
2、密封面堆焊co硬质合金、耐磨、耐腐、抗磨擦性能好、使用寿命长;
3、阀杆调质及表面氮化处理,有良好的抗腐和抗磨擦性能;
4、双重密封,性能更可靠;
5、阀杆升降位置指示更直观;
6、零件材料,法兰和对焊尺寸可根据实际工况或用户要求合理选配,满足各种工程需要。
二、WJ41H国标(A105)波纹管截止阀技术规范:
| 结构形式 | bb-bg-os&y |
| 驱动方式 | 手动 |
| 气动 | |
| 设计标准 | din3356 |
| 结构长度 | din3202 |
| 连接法兰 | din2543-2545 |
| 试验和检验 | din3230 |
三、WJ41H国标(A105)波纹管截止阀产品性能规范:
| 公称压力(mpa) | 壳体试验压力(mpa) | 密封试验压力(mpa) | 适用温度(℃) | 适用介质 |
| 1.6 | 2.4 | 1.76 | -20℃-350℃ | 水、蒸汽、油品等 |
| 2.5 | 3.75 | 2.75 | ||
| 4.0 | 6.0 | 4.4 |
四、WJ41H国标(A105)波纹管截止阀主要零部件材质:
| no. | 名称 | 材质 |
| 1 | 阀体 | wcb、f304、f316 |
| 2 | 阀瓣 | 2cr13、f304、f316 |
| 3 | 轴销 | f304、f316 |
| 4 | 波纹管组件 | f304、f316l |
| 5 | 阀盖 | wcb、f304、f316 |
| 6 | 填料 | 柔性石墨、ptfe |
| 7 | 压套 | 25#、f304、f316 |
| 8 | 定位片 | 25#、f304、f316 |
| 9 | 阀杆螺母 | 铜合金zqa19-4 |
| 10 | 手轮 | 碳钢 |
| 11 | 并帽 | 25# |
| 12 | 油杯 | 黄铜 |
| 13 | 六角螺母 | astma193 2h、a193-8、a193-8m |
| 14 | 双头螺栓 | astma193 b7、a193-b8、a193-b8m |
| 15 | 垫片 | 柔性石墨+不锈钢l、ptfe |
| 16 | 阀杆 | 2cr13、f304、f316 |

五、WJ41H国标(A105)波纹管截止阀-16
| 压力等级 | pn16 | |||||||||||||
| 口径 | 15 | 20 | 25 | 32 | 40 | 50 | 65 | 80 | 100 | 125 | 150 | 200 | 250 | 300 |
| l | 130 | 150 | 160 | 180 | 200 | 230 | 290 | 310 | 350 | 400 | 480 | 600 | 730 | 850 |
| h | 205 | 205 | 217 | 230 | 235 | 240 | 285 | 310 | 370 | 430 | 445 | 560 | 695 | 740 |
| w | 120 | 120 | 140 | 140 | 160 | 180 | 180 | 200 | 250 | 300 | 300 | 400 | 520 | 520 |
| 重量(kg) | 4.5 | 4.8 | 5.5 | 7.8 | 9.5 | 12.7 | 18.6 | 23.5 | 39.5 | 56.8 | 76.1 | 115 | 237.2 | 399.5 |
| 行程h | 7 | 7 | 12 | 13 | 14 | 15 | 19 | 23 | 28 | 35 | 42 | 52 | 64 | 75 |
| kv | 4.2 | 7.4 | 12 | 19 | 30 | 47 | 77 | 120 | 188 | 288 | 410 | 725 | 1145 | 1635 |
六、WJ41H国标(A105)波纹管截止阀-25
| 压力等级 | pn25 | |||||||||||||
| 口径 | 15 | 20 | 25 | 32 | 40 | 50 | 65 | 80 | 100 | 125 | 150 | 200 | 250 | 300 |
| l | 130 | 150 | 160 | 180 | 200 | 230 | 290 | 310 | 350 | 400 | 480 | 600 | 730 | 850 |
| h | 205 | 205 | 217 | 230 | 235 | 240 | 285 | 310 | 370 | 430 | 445 | 560 | 695 | 740 |
| w | 120 | 120 | 140 | 140 | 160 | 180 | 180 | 200 | 250 | 300 | 300 | 400 | 520 | 520 |
| 重量(kg) | 4.5 | 4.8 | 5.5 | 8 | 9.8 | 13 | 19.2 | 24.3 | 43.7 | 57.9 | 81.6 | 137 | 288.1 | 420 |
| 行程h | 7 | 7 | 12 | 13 | 14 | 15 | 19 | 23 | 28 | 35 | 42 | 52 | 64 | 75 |
| kv | 4.2 | 7.4 | 12 | 19 | 30 | 47 | 77 | 120 | 188 | 288 | 410 | 725 | 1145 | 1635 |
七、 WJ41H国标(A105)波纹管截止阀-40
| 压力等级 | pn40 | |||||||||||||
| 口径 | 15 | 20 | 25 | 32 | 40 | 50 | 65 | 80 | 100 | 125 | 150 | 200 | 250 | 300 |
| l | 130 | 150 | 160 | 180 | 200 | 230 | 290 | 310 | 350 | 400 | 480 | 600 | 730 | 850 |
| h | 205 | 205 | 217 | 230 | 235 | 240 | 285 | 310 | 370 | 430 | 445 | 560 | 695 | 740 |
| w | 140 | 140 | 140 | 160 | 180 | 180 | 200 | 250 | 300 | 350 | 350 | 450 | 520 | 520 |
| 重量(kg) | 4.5 | 4.8 | 5.5 | 8.3 | 10.5 | 13.6 | 20.5 | 25.6 | 46.1 | 61.2 | 85 | 159 | 308.5 | 445 |
| 行程h | 7 | 7 | 12 | 13 | 14 | 15 | 19 | 23 | 28 | 35 | 42 | 52 | 64 | 75 |
| kv | 4.2 | 7.4 | 12 | 19 | 30 | 47 | 77 | 120 | 188 | 288 | 410 | 725 | 1145 | 1635 |